关于同意建设种业集团中高档特色盆花生产基地项目的批复

上海种业(集团)有限公司:

    你单位上报的《关于建设中高档特色盆花生产基地的请示》(沪种业[2010]08号)收悉。经研究,同意你单位建设种业集团中高档特色盆花生产基地项目。现批复如下:

    一、项目名称

    种业集团中高档特色盆花生产基地项目。

    二、项目建设地点

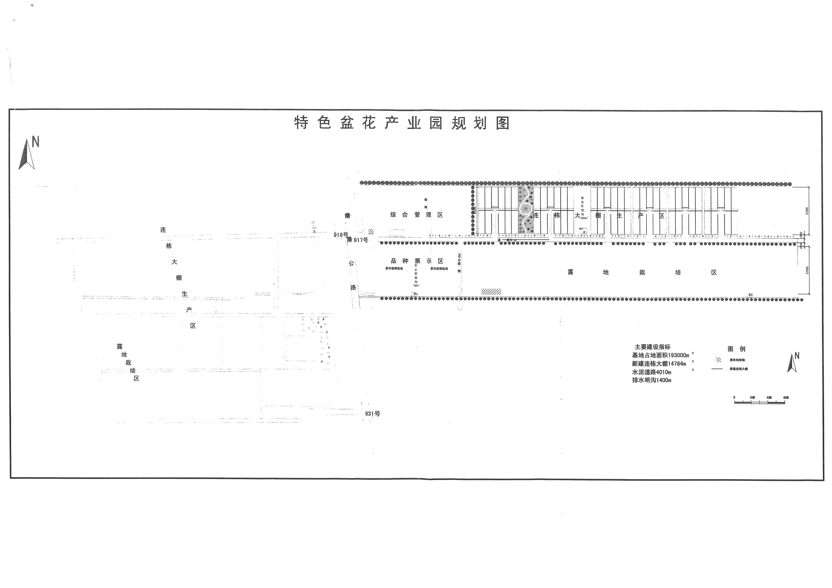
    项目建设地点在上海市浦东新区书院镇上海农业实验场内。项目区域面积289.5亩。

    三、项目实施单位

    上海市花卉良种实施场。

    四、项目建设内容

    主要建设内容包括:水泥道路、水泥明沟、灌溉系统、雨水回收系统、水电配套等基础设施,砖砌盆花栽培槽、遮阳网、连栋大棚等生产设施,以及种苗引进等。(详见附件1)

    五、项目建设投资和资金来源

    项目总投资为598万元,其中:水泥道路、水泥明沟、大门及门卫、灌溉系统、雨水回收系统、生产用房、水电配套、土地复垦等基础建设投资200万元;砖砌盆花栽培槽、遮阳网、连栋大棚等生产设施投资338万元;引种费用25万元;招标费、设计费、监理费及不可预测费等35万元(自筹资金列支)。项目资金来源为市财政专项资金补贴299万元,项目实施单位自筹299万元,其他费用在项目单位自筹部分中列支。市级补贴资金以批准的决算为准。

    请你单位加强对项目资金使用监督管理,确保项目资金专款专用。项目建设单位接到本批复后,要严格按照规范程序组织项目实施,尽快完成项目建设,尽早发挥建设效益。

    上述项目建设内容涉及用地问题的,要按规定办理相关手续,属于政府采购范围的,应按规定进行政府采购。

    特此批复。

    附件:
    1、种业集团中高档特色盆花生产基地项目建设内容及资金明细表
    2、种业集团中高档特色盆花生产基地项目区位图
    3、种业集团中高档特色盆花生产基地项目规划图


上海市农业委员会 
上海市财政局   
二〇一〇年十一月三日

政策性文件留言咨询

(注:1.只接收对该政策性文件的相关咨询;2.留言时请注明政策性文件名称)

全部评论

标签:

分享到:

字体:

相关文章